Popis
NA PREDAJ I Realitná kancelária ZARA PROPERTIES ponúka na predaj priestranný 3 izbový byt v obľúbenej a vyhľadávanej lokalite, na ulici Komenského v meste Púchov.
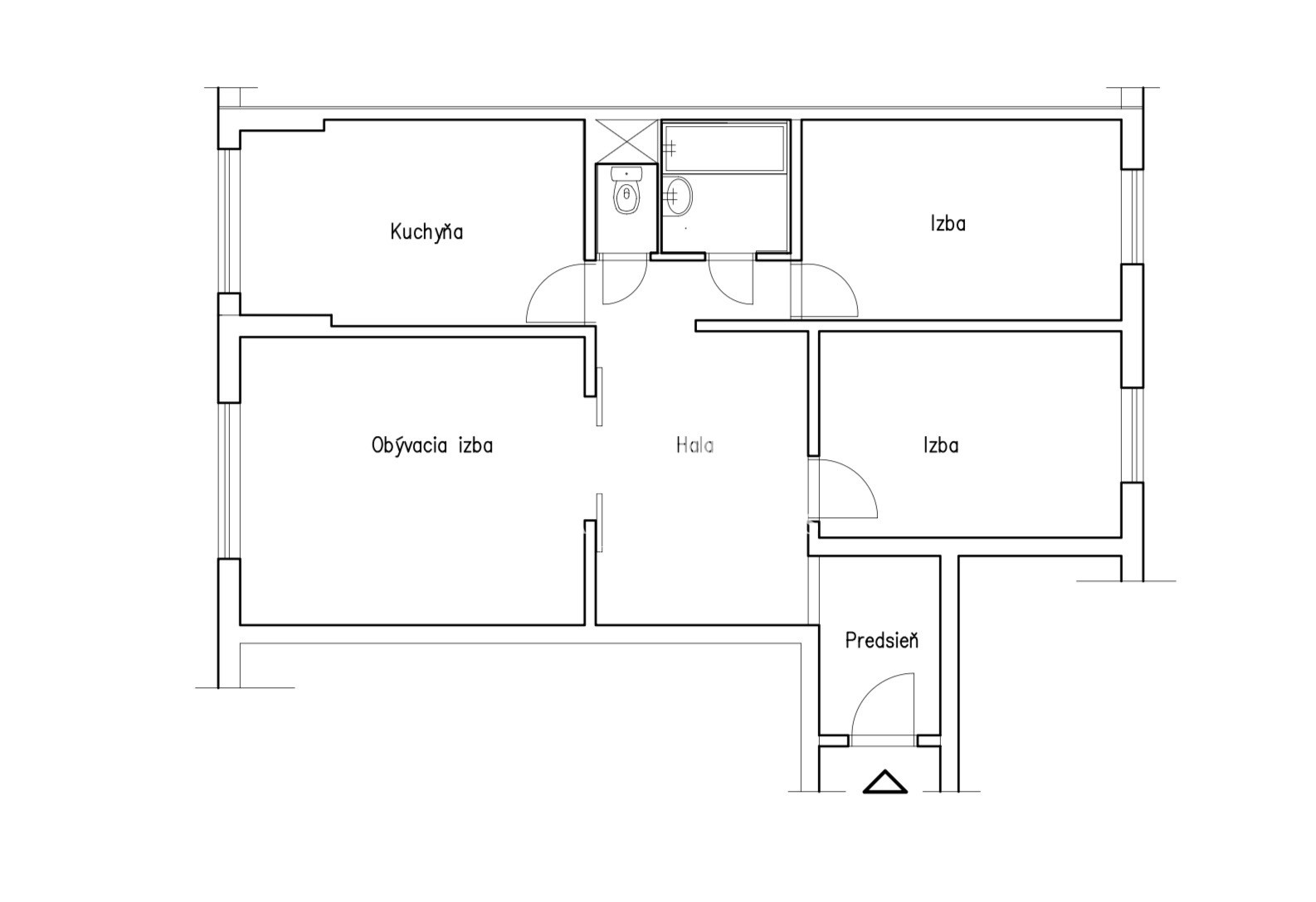
DISPOZÍCIA
chodba, hala, spálňa, detská izba, obývačka, kuchyňa – rozšírená o pôvodnú loggiu (ktorá sa dá v prípade potreby dorobiť), WC, kúpeľňa
O BYTE
Byt sa nachádza na vyvýšenom prízemí bytového domu a má veľkorysú úžitkovú plochu až 74 m2.
Jeho orientácia je čiastočne do tichého dvora a do bočnej uličky – NIE na hlavnú cestu.
Byt je po staršej rekončtrukcii – murované jadro, plastové okná, niektoré podlahy v izbách – avšak je pripravený na rekonštrukciu alebo úpravu podľa predstáv nového majiteľa. Predáva sa vyprataný, bez nábytku a kuchynskej linky.
K bytu prislúcha pivnica v suteréne bytového domu.
BYTOVÝ DOM
Bytový dom s výťahom prešiel obnovou, ktorá spočívala vo výmena okien a vchodových dverí v spol. priestoroch, zateplenie obvodového plášťa, zateplenie a hydroizolácia strechy, zateplenie stropov suterénu. Energetický certifikát bol vyhotovený.
Správca bytového domu je SBD Púchov.
LOKALITA
Ulica Komenského sa nachádza v obľúbenej časti mesta Púchov s výbornou občianskou vybavenosťou a dobrou dostupnosťou do centra. V pešej dostupnosti sa nachádzajú školy, škôlky, obchody aj služby, čo robí lokalitu ideálnou pre rodiny aj jednotlivcov. Okolie ponúka dostatok zelene a možnosti na oddych, či športové aktivity. Lokalita zároveň poskytuje pohodlné dopravné napojenie na hlavné mestské komunikácie a parkovanie v okolí bytového domu.
CENA: 145 000 EUR
Viac informácií Vám rada poskytnem na čísle 0950 407 191, alebo na osobnej obhliadke.
